×

Fastigheten är inaktiv och hyresvärden kan därför inte kontaktas.

Rummelig 2-værelses lejlighed med godt lys indfald!

Hyra för 11685 dkk/mån
Rum2 rum
Hyresperiod-
Boyta70m2
TypLägenhet

Fastigheten är inaktiv och hyresvärden kan därför inte kontaktas.

Skapa bostadsagent

Faciliteter

Rum2 rum
Hyresperiod-
Boyta70m2
TypLägenhet
Inflyttningsdatum-
Datum18 dagar sedan

Rummelig 2-værelses lejlighed med godt lys indfald!

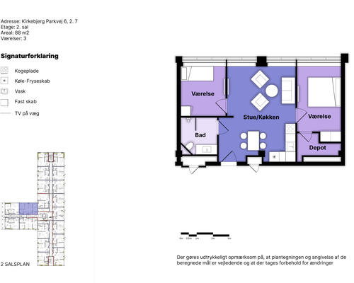
Om boligen:Denne skønne og optimerede lejlighed starter med at byde dig velkommen i en separat lys entré med plads til at hænge overtøjet og med adgang til et stort soveværelse, hvor der er plads til den store seng – fra soveværelset har du yderligere adgang til lejlighedens depotrum, som med fordel kan bruges til walk-in, hvis dette foretrækkes. Fra entréen har du ydermere adgang til badeværelset, som er opført i et tidløst lækkert design, rummeligt og med separat bruseniche og hertil både med vaskemaskine og tørretumbler. I det store lyse køkken-alrum finder du et lækkert fuldt udstyret hvidt køkken med køle-/fryseskab, ovn, kogeplader, emhætte og opvaskemaskine samt god opbevaringsplads. Stuen er godt indrettet med optimale anvendelsesmuligheder, hvor der veludnyttet kan etableres både en sofa- og spiseafdeling. Stuen munder ud i en stor sydvendt altan, hvor sol og frisk luft kan nydes og hvor du har kig ud over det nærliggende villaområde. Hele lejligheden har gulvvarme, som kan justeres i de enkelte rum. Bemærk venligst, at billederne kan være fra en anden bolig, hvorfor indretning, beliggenhed og udsigt kan variere. Materialevalg og kvalitet er den samme for alle boliger i ejendommen. Se plantegningen for indretningen af denne bolig.Om Banehaverne: Banehaverne er tegnet af det prisvindende arkitektfirma Sweco Architects, som har ønsket at skabe en ejendom med fokus på fællesskab og livskvalitet.Ejendommen rummer i alt 16 bygninger (inkl. rækkehuse), der centrerer sig omkring smukke gårdrum med legearealer og rolige opholdszoner. I alt kommer her 6 unikke gårdrum, som forbindes af en lang sti, som snor sig gennem hele komplekset og ender i det store aktivitetsområde Kilen.Kort om området: Området omkring Banehaverne byder på en harmonisk blanding af natur, kultur og byliv.Her er storslået natur ved både vand og skov, gode skoler og daginstitutioner samt et væld af fritidstilbud inden for både friluftsliv, idræt og kreative aktiviteter.Alt sammen er med til at skabe de bedste forudsætninger for en hverdag, der glider nemt og er rig på sjove og spændende muligheder.Banehaverne nyder godt af deres strategiske placering tæt på København. Med kun 10 min. gang til Glostrup Station og nem adgang til motorvejsnetværket er København tæt på. Det åbner dørene til en bred vifte af jobmuligheder og uddannelsesinstitutioner. Du kan nyde godt af den korte afstand til København, mens du stadig kan trække dig tilbage til den rolige atmosfære i Glostrup/Brøndby om aftenen. 

Priser

Hyra per månad11685,00 dkk/mån
Fasta kostnader0,00 dkk/mån
Förskottshyra0,00 dkk
Deposition0,00 dkk

Flere faciliteter

Altan: Ja
Elevator: Ja
Delevenlig: Ja
Husdyr: spørg udlejer
Denna webbplats använder cookies för att säkerställa att du får den bästa upplevelsen på vår webbplats.Läs mer
Ok