2 værelses hus i Kalundborg

Lej for 10.995 kr/md
Værelser2 værelser
Udlejnings periode-
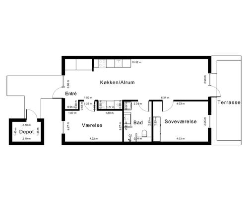
Areal67m2
TypeHus
KONTAKT UDLEJER NU

Faciliteter

Værelser2 værelser
Udlejnings periode-
Areal67m2
TypeHus
Indflytnings dato 5. maj 2026
DatoI dag

2 værelses hus i Kalundborg

.. På Fjordglimt i Kalundborg, præsenterer vi 57 nybyggede rækkehuse for seniorer fordelt på 65 – 90 kvadratmeter. Boligerne bliver placeret højt i landskabet, og projektet lever derfor op til sit navn ”Fjordglimt”, da der vil være kig til fjorden fra nogle af boligerne... Boligerne bliver fordelt på 2-4 værelser og alle kommer til at indeholde et rummeligt køkken-alrum med store vinduespartier, som giver et skønt lys hele året. Udenfor er et lille skur samt en dejlig terrasse. Fra rækkehusene kan du via en kort køretur nå både stationen, havnen og midtbyen, og dermed har du nem adgang til alle hverdagens fornødenheder... Hårde hvidevarer.. Rækkehusene kommer med alt i hårde hvidevarer, og der er gulvvarme i alle rum.. Husdyr.. Lejere kan ansøge om tilladelse til at holde én indekat eller mindre hund på adressen. Udekatte og store hunde er ikke tilladt. Se vores samlede husdyrsregler.. her.. ... Parkering.. Der er fælles parkeringspladser til fri afbenyttelse fordelt langs . Hertil er der 8 ladestandere... Fælles arealer.. Til ejendommen hører et skønt fælleshus, hvor beboerne kan mødes til hyggelige stunder, og som også kan lejes til private arrangementer. Derudover findes et hyggeligt orangeri. Begge faciliteter er naturligvis kun til rådighed for ejendommens beboere... Læs mere om boligen.. De viste billeder kan være fra et andet men tilsvarende lejemål i samme ejendom. Mindre afvigelser kan derfor forekomme...

Priser

Leje per måned10.995,00 kr/md
Forbrug0,00 kr/md
Forudbetalt leje10.995,00 kr
Depositum32.985,00 kr

Flere faciliteter

Husdyr tilladt
KONTAKT UDLEJER NU
Dette websted anvender cookies til trafikanalyse og målrettede annoncer m.m.Mere info
Ok