×

Du skal logge ind for at kunne fortsætte.

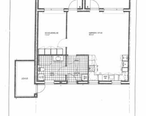
2 værelses lejlighed i Spøttrup

Lej for 5.057 kr/md
Værelser2 værelser
Udlejnings periode-
Areal71m2
TypeLejlighed

Bemærk

  • Boligen udbydes gennem en forening, hvorfor der kan være et mindre gebyr for indmeldelse
KONTAKT UDLEJER NU

Faciliteter

Værelser2 værelser
Udlejnings periode-
Areal71m2
TypeLejlighed
Indflytnings datoSnarest muligt
Dato9 dage siden

2 værelses lejlighed i Spøttrup

. Hyggelige og moderne boliger i Hvidbjerg, Ramsing, Lem & Lihme Afdelingerne i Hvidbjerg, Ramsing, Lem og Lihme tilbyder moderne og renoverede bo- liger, ideelle for både små og store familier, singler og par, der søger et hjem i naturskønne og rolige omgivelser. Fra gårdhuse og dobbelthuse i Hvidbjerg og Ramsing, til nyrenoverede boliger i Lem og Lihme, er der et bredt udvalg af boliger med mo- derne faciliteter, grønne områder og et stærkt lokalsamfund. Hvordan ansøger du? Ønsker du en bolig? Opret dig som ansøger og kom på ventelisten. Hvis boligen er ledig, kan du søge direkte under "Søg bolig" eller kontakte os for hjælp..

Priser

Leje per måned5.057,00 kr/md
Forbrug0,00 kr/md
Depositum11.500,00 kr

Flere faciliteter

Husdyr tilladt
KONTAKT UDLEJER NU
Dette websted anvender cookies til trafikanalyse og målrettede annoncer m.m.Mere info
Ok