×

Du skal logge ind for at kunne fortsætte.

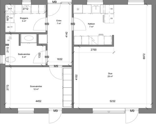
4-værelses lejlighed med altan – tæt på Vodskov

Lej for 5.500 kr/md
Værelser4 værelser
Udlejnings periodeUbegrænset
Areal105m2
TypeLejlighed
KONTAKT UDLEJER NU

Faciliteter

Værelser4 værelser
Udlejnings periodeUbegrænset
Areal105m2
TypeLejlighed
Indflytnings datoSnarest muligt
DatoI dag

4-værelses lejlighed med altan – tæt på Vodskov

Denne lejlighed ligger på Halsvej i Stae, kun få minutters kørsel fra Vodskov bymidte. Her bor man med marker som nærmeste nabo og med kort afstand til både skole, daginstitution og indkøbsmuligheder. Området er roligt med gode busforbindelser mod både Vodskov og Aalborg.. Lejligheden er placeret på 1. sal og rummer tre værelser, en stor stue med udgang til altan og et køkken med god bordplads. Badeværelset er enkelt og praktisk med separat bruseniche.. Fra stuen er der kig ud over åbne marker, og planløsningen gør det nemt at indrette sig. Der er god opbevaringsplads og indbyggede skabe i boligen.. Et oplagt valg til dem, der gerne vil bo lidt uden for byen – med naturen tæt på og samtidig med nem adgang til hverdagens gøremål.. *Gratis parkering

Priser

Leje per måned5.500,00 kr/md
Forbrug1.000,00 kr/md
Forudbetalt leje0,00 kr
Depositum16.500,00 kr

Flere faciliteter

Altan: Ja
Delevenlig: Ja
Husdyr: spørg udlejer
KONTAKT UDLEJER NU
Dette websted anvender cookies til trafikanalyse og målrettede annoncer m.m.Mere info
Ok