×

Du skal logge ind for at kunne fortsætte.

Rummeligt rækkehus med god planløsning

Lej for 12.800 kr/md
Værelser5 værelser
Udlejnings periodeUbegrænset
Areal114m2
TypeHus
KONTAKT UDLEJER NU

Faciliteter

Værelser5 værelser
Udlejnings periodeUbegrænset
Areal114m2
TypeHus
Indflytnings dato 1. aug 2026
DatoI går

Rummeligt rækkehus med god planløsning

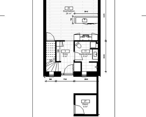
Dette 5-værelses rækkehus på 114 m² er opført i en moderne og enkel stil med lyse rum og en god indretning. Rækkehuset har en rummelig entré med skabsplads og vaskesøjle. . Køkken-alrummet og stuen er samlet i ét stort opholdsrum med plads til både spisebord og sofa. De store vinduer giver et flot lys og udgang til terrassen.. Boligen har fire værelser, som kan bruges efter behov – fx som soveværelse, børneværelser eller kontor. Badeværelset har separat bruseniche og god plads.. Rækkehuset ligger i Vestbjerg, et område kendt for trygge boligkvarterer. Du er tæt på indkøb, skole, daginstitutioner og sportsaktiviteter. Vestbjerg har gode busforbindelser og nem adgang til motorvejen, så du hurtigt kan komme til både Aalborg, Nørresundby og resten af Nordjylland. Nærområdet byder desuden på grønne stier og gode gå- og løberuter.. *Forbrug betales direkte til forsyningen. *Hvidevarer i køkkenet bliver indsat inden indflytning. *Der bliver opsat Clever ladestandere. *Billederne er fra et 4-værelses rækkehus, opført i samme kvalitet og med samme materialevalg. Plantegningen er retvisende.

Priser

Leje per måned12.800,00 kr/md
Forbrug0,00 kr/md
Forudbetalt leje12.800,00 kr
Depositum38.400,00 kr

Flere faciliteter

Altan: Ja
Husdyr tilladt
KONTAKT UDLEJER NU
Dette websted anvender cookies til trafikanalyse og målrettede annoncer m.m.Mere info
Ok