×

Du skal logge ind for at kunne fortsætte.

3 værelses lejlighed i Hadsund

Rent for 8,163 dkk/mth
Rooms3 rooms
Rental periodUnlimited
Area79m2
TypeApartment
CONTACT LANDLORD NOW

Amenities

Rooms3 rooms
Rental periodUnlimited
Area79m2
TypeApartment
Occupation dateAs soon as possible
DateToday

3 værelses lejlighed i Hadsund

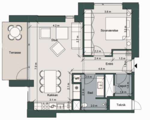
. Velkommen til Boligtype E 79m2 – Funktionel bolig – Kun på 1. sal - Kun en tilbage.. Når du træder ind i denne bolig, bydes du velkommen af en indbydende entré. Til højre finder du en praktisk bøjlestang til overtøj og to skabe. Lige frem kommet første værelse med to skabe på 9m2. Derefter lejlighedens soveværelse på 10m2 med tre skabe. På modsatte side er lejlighedens badeværelse. Badeværelset er elegant indrettet med et skabsarrangement og vask i kunstmarmor samt et oplyst spejl (Svane). Bruseområdet er udstyret med linjeafløb og brusevinge i klart glas, som sikrer et moderne udtryk. Her er der til både vaskemaskine og tørretumbler – ideelt til hverdagens behov.. Boligens hjerte er køkken-alrum på 27 m², hvor funktionalitet og æstetik går hånd i hånd. Det flotte vinkelkøkken fra Svane er indrettet med god skabsplads og alt i hårde hvidevarer, herunder ovn, emhætte, køle-/fryseskab, opvaskemaskine samt en moderne induktionskogeplade. Her er plads til både madlavning og hyggelige stunder med familie og venner.. Fra stuen er adgang til den en 12 m² stor terrasse med kompositgulv (WPC), der kræver minimal vedligeholdelse.. En bolig, der forener moderne komfort, kvalitet og funktionalitet – velkommen hjem!. Fakta:. 79m2. 3 Værelser (Køkkenalrum + 2 værelse). Bad. Køle-/fryseskab. Emhætte. Ovn. Induktionskogeplade. Opvaskemaskine. Gulvvarme i alle rum.. Eget ventilationsanlæg i hver lejlighed.. Lofter: Hvid Træbeton ultrafin. Gulve: Badeværelser: 30x60 cm klinge i lys grå. Stue, værelser og gang: lvt vinyl eg. Plankestørrelse 184 x 1219mm. Til alle lejligheder medfølger depotrum på 2m2.

Prices

Rent per monthdkk/mth8,163.00
Fixed expensesdkk/mth200.00
Rent in advancedkk0.00
Depositdkk24,489.00

More facilities

Balcony: Yes
Pets not allowed
CONTACT LANDLORD NOW
This website uses cookies to ensure you get the best experience on our website.Read more
Ok