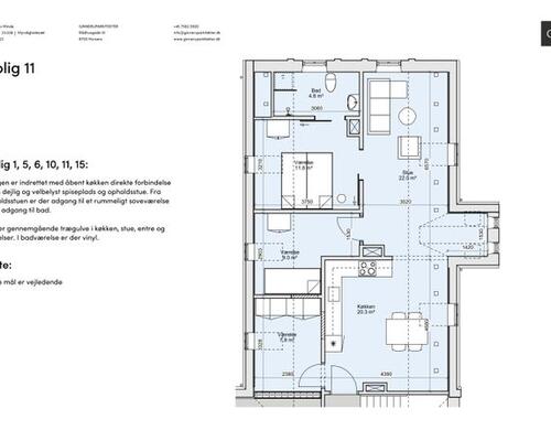
Du skal logge ind for at kunne fortsætte.
8700, Horsens
8700, Horsens
8700, Horsens
8700, Horsens
8700, Horsens
8722, Hedensted
8700, Horsens
8700, Horsens
8723, Løsning
8700, Horsens
8700, Horsens
8700, Horsens
8700, Horsens
8700, Horsens
8700, Horsens
8700, Horsens
8700, Horsens
8700, Horsens
Vil du gerne bevæge dig mod Horsens, og søger du i den forbindelse en ledig lejebolig eller andelsbolig? Så står Boligsurf til rådighed. Det er vores mission at hjælpe boligsøgende, med at finde en ledig andels- eller lejebolig, uanset om der er tale om et værelse, en lille eller større lejlighed samt alle former for huse.


I denne tekst kan du blive klogere på hvordan det er at bo i byen Horsens. Byen har beliggenhed i Østjylland, der hører ind under Region Midtjylland, og har mere 59.449 indbyggere, hvilket gør Horsens til Danmarks 8. største by i Danmark (data fra 2020).
Horsens er et dejlig sted at flytte til, uanset om du er fra en ung, middel eller ældre årgang. Afhængig af hvilken livsstil du fører, vil nogle områder i Horsens passe bedre til dig end andre - det kommer helt an på dine ønsker, behov og økonomi. Steder hvor der typisk er søgninger på lejeboliger i / nær Horsens og omegn, er eksempelvis: Egebjerg, Beringsgården, Torsted, Gnisten, Dagnæs, Engblommevej, Højvangen, Odinsgården, Centerparken, Lund, Mosen, Mosevangen, Horsens syd, Stensballe, Sønderbrogade, Sundvej, Smedegade, Tyrsted, Ternevej, Nordrevej, Rødtjørnen, Stensballe, Bankager, Bjerrevej, Bygaden, Østergade eller en general søgning på postnummeret 8700 Horsens.
Uanset om du er interesseret i at finde en lejebolig i en af ovenstående områder, eller et helt andet sted i Horsens, så står Boligsurf med vores platform til rådighed. Området som vil egne sig bedst for dig at bo i, kan afhænge af mange ting. Fx dine behov, præferencer og økonomiske situation - der er selvsagt forskel på om du er ung på SU, har fuldtidsarbejde, kan lide at gå og høre lyden af bylivet, eller gerne vil have ro i hytten kl 8.
Står du i den omvendte situation; at du gerne vil leje eller sælge en andelsbolig? Så hjælper vi også meget gerne med at finde en køber / lejer. Det gælder uanset om der blot er tale om et værelse, 2 værelses, 3 værelses, 4 værelser mf. Du vil med stor sandsynlighed opleve at du får kontakt til en del potentielle ‘’nye beboere’’ til din bolig, efter mange af boligforeningerne har lange ventetider - derfor er det oplagt at kontakte private.
Livet med en bolig i Horsens byder på lidt og hvert. Byen er rummelig, med mange forskellige typer af mennesker, og der findes dermed også andelsboliger samt boliger til leje, som dækker langt de flestes behov.
Spørger du en indbygger i Horsens, om hvordan der er at bo der, så vil du højst sandsynligt få et svar der lyder noget i stil med: At Horsens henvender sig både til de, som sætter pris på et aktivt byliv, parcelhus hygge eller landlig lykke. Det vises også ved de forskellige generationer, der bor i byen, og så er de gode priser man kan finde på leje- og andelsboliger i byen, heller ikke til at klage over.
Er du til sammenhold og foreningslivet, så finder der mange muligheder i Horsens. Eksempler herpå kan være Horsens svømmehal, kajak, fitness, komediehus, teater, musik, billedskole og balletskole mm.
Her er altså både plads og aktiviteter for familier, unge og ældre. Fælles for alle typerne af boliger er, at de bliver lejet eller solgt hurtigt. Derfor gør du klogt i, at handle hurtigt når du falder for en bolig på Boligsurf, som du synes godt om.
Vælger du at flytte til Horsens, så vær ikke nervøs for indkøbsmulighederne. Der ligger intet mindre end 40 supermarkeder og dagligvarebutikker fordelt rundt omkring i byen. Er det shopping der frister lidt mere, så skal turen gå til Søndergade i bymidten. Her møder du intet mindre end Danmarks bredeste gågade med mere end 150 butikker.
Ligeledes er det i midtbyen eller på havnen at du som oftest vil støde på sjove og interessante aktiviteter for hele familien. For ikke at nævne Horsens Statsfængsel, der godt nok ikke længere fungere som et fængsel, men i stedet er blevet indrettet som museum og kulturhus, hvor mange koncerter og kulturfestivaler afholdes.
Er du usikker på hvordan du kontakter udlejer af en bolig her på Boligsurf? Så skal du vide, at du er mere end velkommen til at kontakte os i supporten. Det gælder også andre eventuelle spørgsmål du har.
Måske ved du det allerede, måske ved du det ikke. I så fald, bliver du nu klogere på at Horsens er en ret solid studieby, der har mere end 100 forskellige uddannelsesretninger. Det gælder alt lige fra ungdoms- og erhvervsuddannelser til videregående uddannelser.
Eksempelvis finder du i Horsens uddannelser som: VIA Horsens, Bygholm Landbrugsskole, Learnmark, Social- og Sundhedsskolen, Erhvervsakademi Dania Horsens Gymnasium, Horsens HF og VUC og Horsens statsskole.
Vil du gerne, eller er du allerede blevet optaget på en af ovenstående studier i Horsens? Så spids ører og kom i gang med at finde din bolig i Horsens nu. Det handler nemlig om at være hurtig på tasterne, hvis man altså gerne vil have fat i en af de gode boliger - eftersom der handles efter efter først til mølle princippet. Dvs. at når et godt tilbud dukker op på skærmen, så hold dig ikke tilbage med at kontakte ejeren af annoncen :-) Er du en af de rigtig heldige, så kan det måske være, at du finder en bolig i Horsens som er indskuds fri.
Får du ikke den bolig du gerne ville have haft, så trøst dig med at vi på Boligsurf løbende får en del ledige lejeboliger og huse ind, som har beliggenhed i Kommunen. Det samme gælder for andelsboliger - både i form af huse, rækkehuse og lejligheder i Horsens, som er til salg. Har du spørgsmål eller har du brug for hjælp, så kontakt os endelig i supporten - vi sidder klar til at hjælpe.
Er du og din familie blot inde og lure, eller søger i akut en ny bolig - hvor valget muligvis kan falde på Horsens, så kan I måske blive be eller afkræftet om valget, efter at have læst med her. Der er faktisk mange gode grunde som familie til, at skulle flytte til Horsens.
Det gælder både byens mange forskellige områder du kan bosætte dig i, forskellige aktiviteter til både børn og voksne, gode jobmuligheder tæt på, samt skole og dagtilbud til dine børn.
I og med at Horsens ligger lige i smørhullet, findes der mere end 4000 arbejdspladser udelukkende i Kommunen. Har du mod på at tage ud af byen, så står der mere end en halv million jobmuligheder foran dig, med max 60 minutters transport. For at komme frem og tilbage er det nemt at ramme motorvejen lige udenfor byen, og der kører toge til og fra Horsens, flere gange i timen.
Er du ved at nå slutningen på din barsel, så vær ikke nervøs for om dit barn kan komme i institution. Kommunen har ikke lange ventelister og tilbyder faktisk pasningsgaranti. Efter endt børnehave er det tid til skolegang i Horsens, som fokuserer på tre målområder: Læring, Trivsel og personlig mestring.
Har du udover børn, også husdyr du gerne vil have flytter med til Horsens? Så vil vi blot give dig det tip, at tjekke op i din kontakt om husdyr er tilladt. Der er mange gode steder at lufte hunden i Horsens, men det vil være rigtig ærgerligt at få sure naboer, hvis det viser sig efter at du er flyttet ind, at man skal ikke må holde dyr på matriklen.
Du har med garanti en masse specifikke krav til dit kommende hjem, uanset hvor i livet du er. Det kan være en god ide, at definere disse krav - for hvorfor bruge tid på at kigge på boliger, der ikke passer til dine behov?
Derefter kan du nemt og hurtigt sortere i listen over lejeboliger i Horsens. Funktionen gør sig særlig nyttig til at præcisere hvilken type bolig du søger, størrelse, budget mm.
Har du ikke de store krav? Jamen så gå endelig i krig med at undersøge de mange lejeboliger du finder i Boligsurfs’ store kartotek.