2 værelses hus i Odense SV

Lej for 5.787 kr/md
Værelser2 værelser
Udlejnings periode-
Areal68m2
TypeHus
KONTAKT UDLEJER NU

Faciliteter

Værelser2 værelser
Udlejnings periode-
Areal68m2
TypeHus
Indflytnings dato 1. maj 2026
DatoI dag

2 værelses hus i Odense SV

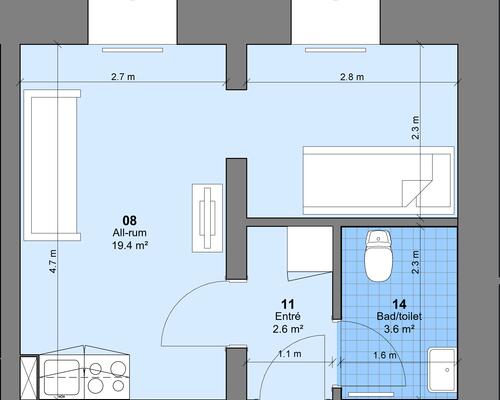
I det rolige og grønne kvarter i Bellinge ligger dette 2-værelses rækkehus med egen terrasse og adgang til fælles parklignende have. Her bor du fredeligt, men stadig med kort afstand til byens liv og muligheder.. Der er gode indkøbsmuligheder i nærområdet, blandt andet dagligvarebutikker og lokale specialforretninger. Offentlig transport er let tilgængelig – buslinjerne stopper ved Flintagervej, blot et par minutters gang fra boligen.. Der er cirka 7 km til Odense centrum, og turen med bus tager omkring 20 minutter.. Boligen indeholder glasfoyer, køkken, badeværelse, to rum og en stor rummelig hems. Der er alt i hårde hvidevarer – mikroovn, opvaskemaskine, tørretumbler og vaskemaskine – og radiatorer i hele ejendommen. Parkering er muligt for én bil pr. bolig.. Praktisk info:. – Udover husleje betales for varme til udlejer. Dette beløb står under aconto.. – El og antenne betales direkte til de pågældende forsyningsselskaber.

Priser

Leje per måned5.787,00 kr/md
Forbrug400,00 kr/md
Forudbetalt leje5.787,00 kr
Depositum17.361,00 kr

Flere faciliteter

Altan: Ja
Husdyr ikke tilladt
KONTAKT UDLEJER NU
Dette websted anvender cookies til trafikanalyse og målrettede annoncer m.m.Mere info
Ok