×

Du skal logge ind for at kunne fortsætte.

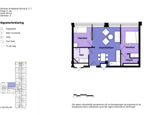
2 værelses lejlighed i Albertslund

Lej for 12.100 kr/md
Værelser2 værelser
Udlejnings periode-
Areal90m2
TypeLejlighed
KONTAKT UDLEJER NU

Faciliteter

Værelser2 værelser
Udlejnings periode-
Areal90m2
TypeLejlighed
Indflytnings datoSnarest muligt
DatoI går

2 værelses lejlighed i Albertslund

Lejligheden er moderne og lyst indrettet med et flot lysindfald fra de store vinduespartier. Alle lejligheder har direkte adgang til egen terrasse eller altan, så livet også kan nydes udenfor blot ved at åbne terrassedøren og man er ligeledes sikret en flot udsigt over Albertslund.Ejendommen er udviklet med fokus på at skabe et unikt seniorbofællesskab. Derfor har du som beboer adgang til fællesfaciliteter såsom tagterrasse med en motionssti og siddemiljøer, et stille og roligt gårdrum med orangeri, et fælleskøkken og spisefaciliteter med tilhørende terrasse og ikke mindst et hobbyrum, hvor der eksempelvis vil være værksted.Der er elevator i alle opgange, så man nemt kommer til sin bolig direkte fra gaden eller fra bilparkeringen.Til hver lejlighed følger et depotrum, hvor du kan opbevare de ting, som du ikke bruger så ofte. Der er derudover mulighed for at leje en p-plads i parterre.

Priser

Leje per måned12.100,00 kr/md
Forbrug1.030,00 kr/md
Forudbetalt leje12.100,00 kr
Depositum36.300,00 kr

Flere faciliteter

Elevator: Ja
Altan: Ja
Husdyr tilladt
KONTAKT UDLEJER NU
Dette websted anvender cookies til trafikanalyse og målrettede annoncer m.m.Mere info
Ok