3 værelses hus i Risskov

Lej for 15.325 kr/md
Værelser3 værelser
Udlejnings periode-
Areal124m2
TypeHus
KONTAKT UDLEJER NU

Faciliteter

Værelser3 værelser
Udlejnings periode-
Areal124m2
TypeHus
Indflytnings dato15. mar 2026
DatoI går

3 værelses hus i Risskov

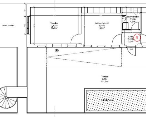
Forestil dig at bo i et unikt og charmerende rækkehusmiljø midt i hjertet af Risskov. Her får du og din familie hele 3 soveværelser, 1 toilet, 1 badeværelse, et lyst køkken-alrum og en indbydende stue. I de 18 eksklusive rækkehuse i to plan forenes klassisk arkitektur med moderne komfort. De karakteristiske sadeltage og den rolige beliggenhed – med husene vendt væk fra byens støj – skaber en særlig oase, hvor der er plads til både ro og hyggeligt naboskab.. Beliggenheden er noget helt særligt. Vikæret ligger fredeligt ved kirken og på en blind vej med minimal trafik. Samtidig er du tæt på det hele – kun få skridt fra skoler, gymnasium, daginstitutioner, idrætsfaciliteter, offentlig transport samt både skov og strand. Og med Aarhus C lige i nærheden er du aldrig langt fra byens puls. Her er blandt andet 0,8 km til Veri Centeret, 1,1 km til Risskov Skole, 0,5 km til Risskov Gymnasium, 0,2 km til Rema 1000 og 2,6 km til Bellevue Strand.. I Vikæret er der ikke gået på kompromis med materialerne. De naturlige, grå teglsten skaber et solidt og tidløst udtryk, mens træskurene tilfører varme og karakter. De bløde stisystemer og den grønne beplantning danner en fredelig ramme, der inviterer til både nærvær og fællesskab.. De velindrettede boliger i to plan skaber en naturlig balance mellem privatliv og samvær. Den afskærmede indgang byder dig velkommen, og i stueetagen åbner hjemmet sig op med et lyst køkkenalrum og en hyggelig stue – perfekt til både hverdag og gæster. På førstesalen finder du tre rummelige værelser og et moderne badeværelse, mens et ekstra toilet på stueplan øger komforten i dagligdagen.. Fra stuen er der direkte adgang til en privat terrasse – det perfekte sted til både afslapning og sociale sammenkomster i trygge rammer.. Der medfølger egen P-plads til hver bolig. Denne koster kr. 400 pr. måned, og det er muligt at tilkøbe ladestander til elbilen.. Tag springet og bliv en del af Vikæret – et sted, hvor stil, fællesskab og moderne bekvemmelighed går hånd i hånd. Dit nye hjem venter på dig!

Priser

Leje per måned15.325,00 kr/md
Forbrug0,00 kr/md
Forudbetalt leje15.325,00 kr
Depositum45.975,00 kr

Flere faciliteter

Altan: Ja
Husdyr: spørg udlejer
KONTAKT UDLEJER NU
Dette websted anvender cookies til trafikanalyse og målrettede annoncer m.m.Mere info
Ok