3 værelses lejlighed i Hadsten

Lej for 7.182 kr/md
Værelser3 værelser
Udlejnings periode-
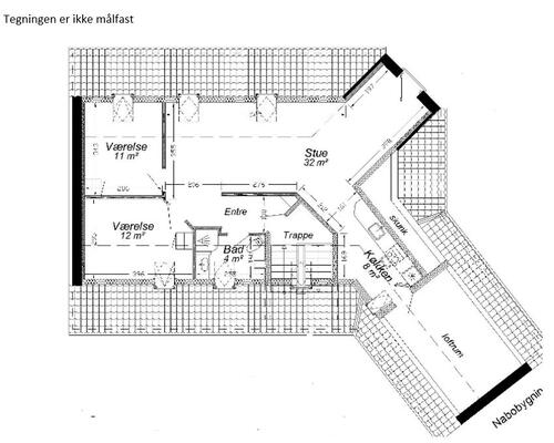
Areal104m2
TypeLejlighed
KONTAKT UDLEJER NU

Faciliteter

Værelser3 værelser
Udlejnings periode-
Areal104m2
TypeLejlighed
Indflytnings dato 1. apr 2026
DatoI dag

3 værelses lejlighed i Hadsten

Boligerne er etableret i en ejendom fra 1904 er blevet totalrenoveret i 2002 med nyt køkken og badeværelse samt nye vinduer, gulve, lofter og installationer. Nogle lejligheder har franske altaner. Ejendommen ligger meget centralt i Hadsten by og meget tæt på gode indkøbsmuligheder. I Hadsten er der vuggestue, børnehave, skole, ældrecenter, togstation (tæt på), bibliotek og mange indkøbsmuligheder.. Afdelingen har fjernvarme. (8370 Hadsten, Søndergade 26).

Priser

Leje per måned7.182,00 kr/md
Forbrug850,00 kr/md
Depositum23.111,00 kr

Flere faciliteter

Altan: Ja
Husdyr: spørg udlejer
KONTAKT UDLEJER NU
Dette websted anvender cookies til trafikanalyse og målrettede annoncer m.m.Mere info
Ok