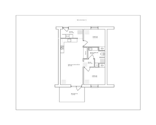
3 værelses lejlighed i Malling
Lej for 9.695 kr/md
Værelser3 værelser
Udlejnings periodeUbegrænset
Areal80m2
TypeLejlighed

Hej 👋🏻
Velkommen til Boligsurf, vi glæder os til at hjælpe dig ☀️
Se de mest stillede spørgsmål her
Har du andre spørgsmål, kan du altid skrive til os på info@boligsurf.dk
Kundeservice alle ugens dage fra kl. 8 - 22
Kan du ha' en dejlig dag 😊
Med en Fordelspakke hos Boligsurf
kan du kontakte udlejere ubegrænset i 5 dage for kun 29 kr.
Du kan opsige dit medlemskab allerede 24 timer efter oprettelse. Opsiges medlemskabet ikke indenfor 5 dage koster det 349,-/md. og fornyes hver fjerde uge indtil du afmelder dig.
Få adgang til kontaktoplysninger på alle boliger på Boligsurf
Få automatisk besked, når nye boliger matcher dine ønsker
Bliv kontaktet direkte af udlejere
Opsig når som helst efter de første 24 timer til udgangen af en periode
8340, Malling