×

Du skal logge ind for at kunne fortsætte.

4 værelses hus i Gistrup

Lej for 7.625 kr/md
Værelser4 værelser
Udlejnings periode-
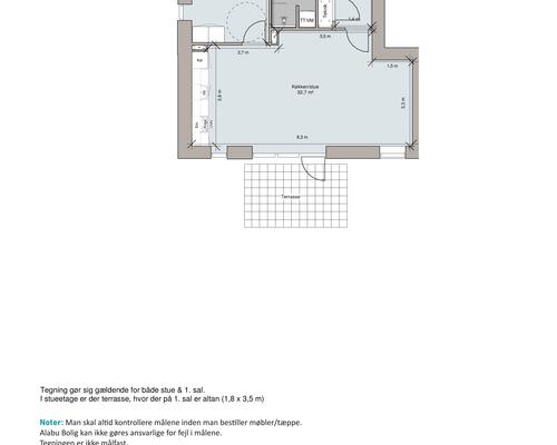
Areal86m2
TypeHus
KONTAKT UDLEJER NU

Faciliteter

Værelser4 værelser
Udlejnings periode-
Areal86m2
TypeHus
Indflytnings datoSnarest muligt
Dato2 dage siden

4 værelses hus i Gistrup

I Gistrup ligger Alabu Boligs afdeling 32, Knuden, som består af lejeboliger, heraf 10 ungdomsboliger. Byggeriet fra 1985 er opført med røde mursten og indrettet som en blanding af ungdomsboliger, lejligheder og rækkehuse i 1½ plan. Alle boliger har have. Der er fælleshus og fælles vaskeri i afdelingen samt mulighed for at leje carport. Ungdomsboligerne skal ansøges gennem AKU-Aalborg.

Priser

Leje per måned7.625,00 kr/md
Forbrug1.391,00 kr/md
Depositum22.611,00 kr

Flere faciliteter

Husdyr: spørg udlejer
KONTAKT UDLEJER NU
Dette websted anvender cookies til trafikanalyse og målrettede annoncer m.m.Mere info
Ok