×

Annoncen kunne ikke findes. Den er sandsynligvis blevet slettet af brugeren der lagde den op.

4 værelses hus i Kolding

Lej for 12.405 kr/md
Værelser4 værelser
Udlejnings periode-
Areal118m2
TypeHus
KONTAKT UDLEJER NU

Faciliteter

Værelser4 værelser
Udlejnings periode-
Areal118m2
TypeHus
Indflytnings dato 1. maj 2026
DatoI dag

4 værelses hus i Kolding

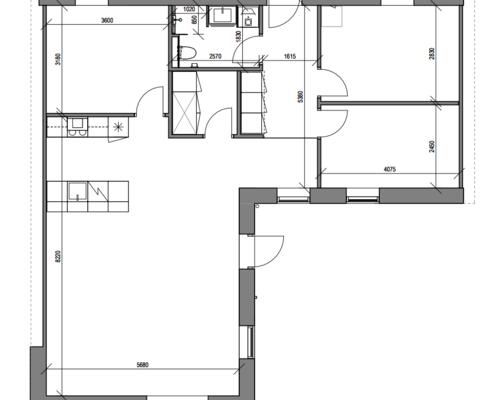
. Ved Vonsild Bakke i Kolding er vi glade for at præsentere et nyt, stort boligprojekt med 149 rækkehuse i ét plan i varierende størrelser. Med 2-5 værelser bliver der plads til både enlige, par, familier og seniorer, og alle rækkehuse er udstyret med et lækkert køkken-alrum.. Udenfor er der tilhørende privat have og/eller terrasse til de alle boliger, og nogle rækkehuse har ligeledes privat parkeringsplads, imens andre får adgang til fælles parkering i nærheden af boligen. Alle boliger får desuden et skur, og nogle boliger har også et lille depotrum i boligen.. Hårde hvidevarer. Du får alt i hårde hvidevarer, herunder også opvaskemaskine, vaskemaskine og tørretumbler.. Husdyr. Det er tilladt at holde husdyr.*. *Der skal altid udarbejdes en husdyrserklæring til det pågældende husdyr. Kontakt os for mere info, hvis du ønsker at holde husdyr i din bolig.. Parkering. Fri parkering på privat plads eller fælles pladser.. OBS: Vi tager forbehold for eventuelle ændringer i byggeprocessen. Vi gør desuden opmærksom på, at plantegningerne er vejledende ift. målene.. Læs mere om boligen. De viste billeder kan være fra et andet men tilsvarende lejemål i samme ejendom. Mindre afvigelser kan derfor forekomme..

Priser

Leje per måned12.405,00 kr/md
Forbrug0,00 kr/md
Forudbetalt leje0,00 kr
Depositum37.215,00 kr

Flere faciliteter

Husdyr tilladt
KONTAKT UDLEJER NU
Dette websted anvender cookies til trafikanalyse og målrettede annoncer m.m.Mere info
Ok