×

Du skal logge ind for at kunne fortsætte.

Nybygget 4 værelse rækkehus med have

Lej for 14.900 kr/md
Værelser4 værelser
Udlejnings periode-
Areal106m2
TypeHus
KONTAKT UDLEJER NU

Faciliteter

Værelser4 værelser
Udlejnings periode-
Areal106m2
TypeHus
Indflytnings dato15. jun 2026
DatoI går

Nybygget 4 værelse rækkehus med have

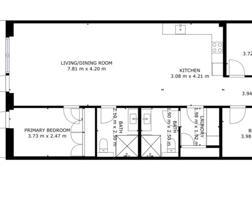
. Veldisponeret rækkehus i 2 plan med parkering – og elladestandere – lige uden for døren. Fra indgangsterrassen foran huset træder du ind i vindfanget, som er direkte forbundet med boligens hjerte, køkken-alrummet. Stueetagen rummer desuden toilet og en hyggelig stue. Fra stuen er der udgang til haven, som med sin placering mod sydøst giver dig mange soltimer, samtidig med at du er tæt på kvarterets store grønne fællesområde. På førstesalen finder du badeværelset, et stort soveværelse og to gode værelser med ekstra højt til loftet.. Bemærk venligst, at de viste billeder er ikke fra/af den pågældende bolig, hvorfor udsigt, rum mv. kan variere. De viste billeder er derfor kun et eksempel, og den endelige størrelse og indretning kan variere (se plantegningen)..

Priser

Leje per måned14.900,00 kr/md
Forudbetalt leje14.900,00 kr
Depositum0,00 kr

Flere faciliteter

Husdyr tilladt
KONTAKT UDLEJER NU
Dette websted anvender cookies til trafikanalyse og målrettede annoncer m.m.Mere info
Ok