4 værelses lejlighed i Odense V

Lej for 10.500 kr/md
Værelser4 værelser
Udlejnings periode-
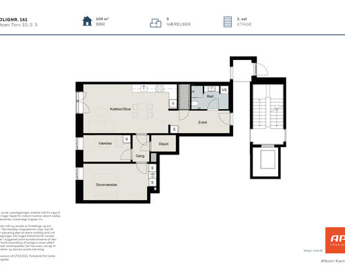
Areal97m2
TypeLejlighed

Bemærk

  • Annoncen linker til ekstern side
KONTAKT UDLEJER NU

Faciliteter

Værelser4 værelser
Udlejnings periode-
Areal97m2
TypeLejlighed
Indflytnings dato 1. apr 2026
DatoI dag

4 værelses lejlighed i Odense V

Rækkehus og lejlighed til leje i Odenses nye grønne bydel Gartnerbyen i Odense byder på lejligheder og rækkehuse i to plan, der sammen skaber et moderne byhus-kvarter i Odenses nye grønne bydel, Havekvarteret. Bo til leje i rækkehus eller stuelejlighed med køkkenalrum, terrasse og fantastisk lysindfald. Rækkehusene i Gartnerbyen består af større 4 værelses boliger på 97 til 121 kvm på første og anden sal, mens der i stueetagen er velindrettede 2 og 3 værelses lejelejligheder på 65 til 79 kvm. Hjertet i boligerne er det store køkkenalrum og stue i ét, hvor du kan nyde det fantastiske lysindfald fra begge sider. Alle boligerne har udgang til egen terrasse, hvor du har god plads til havemøblerne og grillen. Bygningerne er orienteret i forhold til verdenshjørnerne, hvilket skaber et fantastisk lysindfald i boligerne. Gårdhaver og tagterrasser er alle sydvendte, så du kan nyde solen fra morgen til aften. Alle boligerne er moderne indrettet med lakeret parketgulv i eg, køkken fra Svane med alle hårde hvidevarer, mens der på badeværelset er gulvvarme og vaskemaskine. Attraktiv bydel for både børnefamilier, unge, par og seniorer Som beboer på Duftrankevej i Gartnerbyen har du alt, hvad du skal bruge kun 5 minutter fra din bolig. Her kan du handle ind på butikstorvet, shoppe i de små buikker og tage en frisk gå- eller løbetur i den smukke omkringliggende natur i skoven. Skal du ud på en større shoppetur, ligger Odense gågade kun få kilometer væk, hvor du kan finde mange specialbutikker, caféliv og kulturelle oplevelser. Ikke langt fra boligerne ligger der også et stort udvalg af skoler, børnehaver og vuggestuer, hvor børnene trygt og sikkert kan komme til og fra via stisystemerne. Skal du ud af byen, har du let adgang til ringvejen og motorvejen, ligesom den nye letbane også er inden for kort afstand. Det er desuden heller ikke et problem med parkering, da du har mulighed for at få egen parkeringsplads. Lej en lejebolig i Gartnerbyen på Duftrankevej 210-268, 5000 Odense. Med en lejebolig i Gartnerbyen har du den bedst mulige beliggenhed i grønne omgivelser, men hvor der lige udenfor døren åbner sig et moderne byhus-kvarter og nem adgang til byen og dens mange muligheder. Velkommen til!

Priser

Leje per måned10.500,00 kr/md
Forbrug480,00 kr/md
Forudbetalt leje10.500,00 kr
Depositum31.500,00 kr

Flere faciliteter

Elevator: Ja
Altan: Ja
Husdyr ikke tilladt
KONTAKT UDLEJER NU
Dette websted anvender cookies til trafikanalyse og målrettede annoncer m.m.Mere info
Ok