×

Du skal logge ind for at kunne fortsætte.

Delevenlig studiebolig - med UNI som nabo

Lej for 9.000 kr/md
Værelser2 værelser
Udlejnings periode-
Areal63m2
TypeLejlighed
KONTAKT UDLEJER NU

Faciliteter

Værelser2 værelser
Udlejnings periode-
Areal63m2
TypeLejlighed
Indflytnings dato15. mar 2026
DatoI dag

Delevenlig studiebolig - med UNI som nabo

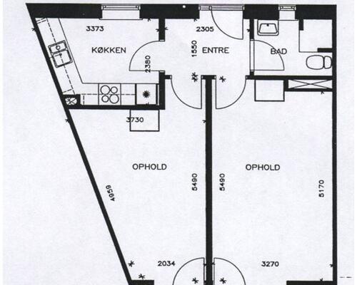
Delevenlig studiebolig - med UNI som nabo. Lejligheden er klar til overtagelse d. 15. marts 2026.. - Flot og lys 2’er på 63 m2. - Central entre med god plads til overtøjet. - Lyst badeværelse med separat bruseniche. - Lyst og pænt køkken med mulighed for en lille spiseplads. - To rummelige og lyse værelser på 17 m2 og 14 m2. - Fra begge værelser er der udgang til dejlig syd-/vestvendt altan. OBS: Der gøres opmærksom på, at lejlighederne er studieboliger og det er dermed et krav at du er aktiv studerende eller optaget på et godkendt studie eller læreplads. Hertil skal du være mellem 18 – 35 år for at kunne komme i betragtning til en lejlighed i ejendommen. . Bebor sammensætningen er studerende, unge mennesker og par. Meget velfungerende boligforening med ansat vicevært og gode fællesfaciliteter, herunder fælles vaskeri, depotrum til alle lejligheder, samt cykel kælder.. Ligeledes bliver der mulighed for leje af privat P-plads i aflåst kælder. Der må ikke holdes husdyr i ejendommen. . Beliggende i det populære universitetsområde tilbyder lejlighederne en ideel kombination af komfort, praktisk beliggenhed og moderne design. Med sin nærhed til Universitetet er det den perfekte boligløsning for studerende, der ønsker at være tæt på akademiske institutioner og alt det pulserende studieliv.. Området er blomstret op som universitetsparkens lillebror og serverer med sine mange boliger, butikker, fitnesscenter og grønne frirum et attraktivt alternativ til Aarhus midtby. Der er kort afstand til indkøbs- og fitnesscenter samt gode busforbindelser til både City og det øvrige Aarhus. Herudover er der kun få minutters gang til Letbanen, som hurtigt bringer dig enten ind- eller ud af Smilets by. .

Priser

Leje per måned9.000,00 kr/md
Forbrug600,00 kr/md
Forudbetalt leje18.000,00 kr
Depositum27.000,00 kr

Flere faciliteter

Altan: Ja
Elevator: Ja
Husdyr ikke tilladt
KONTAKT UDLEJER NU
Dette websted anvender cookies til trafikanalyse og målrettede annoncer m.m.Mere info
Ok