×

The property is inactive, and therefore the landlord can not be contacted.

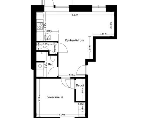
3 værelses lejlighed i Frederikssund

Rent for 11,500 dkk/mth
Rooms3 rooms
Rental period-
Area71m2
TypeApartment

The property is inactive, and therefore the landlord can not be contacted.

Opret boligagent

Amenities

Rooms3 rooms
Rental period-
Area71m2
TypeApartment
Occupation dateMar 15
DateYesterday
StreetKirkegade

3 værelses lejlighed i Frederikssund

. I Fiomagården på Kirkegade midt i Frederikssund midtby udlejer vi 1- til 4-værelses lejligheder med altan eller terrasse.. De fleste lejemål har depotrum i boligen mens nogle få har depotrum i kælderen.. Hårde hvidevarer. Der er alt i hårde hvidevarer herunder en kombimaskine, hvor du kan vaske og tørre tøj.. Husdyr. Lejere kan ansøge om tilladelse til at holde én indekat og hund. Du kan se vores samlede husdyrregler. her. .. Parkering. Det er muligt at leje en parkeringsplads i p-kælderen eller gården, hvor der også er ladestandere.. Fælles arealer. Bygningerne danner en ramme om et hyggeligt gårdmiljø. Her er der plads til at læse en bog, invitere familie eller venner på besøg i de grønne omgivelser. Elsker du en god udsigt, så har du i flere opgange adgang til en fælles tagterrasse på øverste etage, hvor du kan se ud over byen og fjorden.. Læs mere om boligen. De viste billeder kan være fra et andet men tilsvarende lejemål i samme ejendom. Mindre afvigelser kan derfor forekomme..

Prices

Rent per monthdkk/mth11,500.00
Fixed expensesdkk/mth900.00
Rent in advancedkk11,500.00
Depositdkk34,500.00

More facilities

Balcony: Yes
Pets allowed
This website uses cookies to ensure you get the best experience on our website.Read more
Ok