×

The property is inactive, and therefore the landlord can not be contacted.

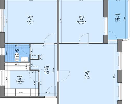
3 værelses lejlighed i Randers

Rent for 4,900 dkk/mth
Rooms3 rooms
Rental periodUnlimited
Area87m2
TypeApartment

The property is inactive, and therefore the landlord can not be contacted.

Opret boligagent

Amenities

Rooms3 rooms
Rental periodUnlimited
Area87m2
TypeApartment
Occupation dateAs soon as possible
Date11 days ago
StreetFyensgade

3 værelses lejlighed i Randers

Moderniseret lejlighed, indeholder køkken med hårde hvidevare (komfur, emhætte, køle/fryse skab), flisebadeværelse med bruseniche. Gulvene i lejligheden er ny lakerede. Lejligheden lejes ikke ud som dele-lejligheden og der må ikke holdes husdyr. Fælles vaskeri og flot fælles gårdanlæg. Huslejen er inkl. vand (normalt 400-500 kr. pr. måned).

Prices

Rent per monthdkk/mth4,900.00
Fixed expensesdkk/mth850.00
Rent in advancedkk4,900.00
Depositdkk14,700.00

More facilities

Pets not allowed
This website uses cookies to ensure you get the best experience on our website.Read more
Ok