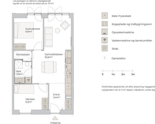
3 værelses lejlighed i Risskov

Rent for 10,795 dkk/mth
Rooms3 rooms
Rental period-
Area70m2
TypeApartment
CONTACT LANDLORD NOW

Amenities

Rooms3 rooms
Rental period-
Area70m2
TypeApartment
Occupation dateJun 01
Date3 days ago

3 værelses lejlighed i Risskov

. Alle boliger i Bækkelundshusene er indrettet med store franske altaner, der giver lys og luft ind i lejligheden. Foran boligerne er der en altangang, der er med til at give ly og læ ved indgangen til boligerne. Og så er altangangen med til at skabe et fællesskab, hvor du kan hilse på naboen, falde i snak og I kan mødes om det gode naboskab.. Billeder af boligen, interiør og udsigt skal ikke ses som den specifikke bolig.

Prices

Rent per monthdkk/mth10,795.00
Fixed expensesdkk/mth945.00
Rent in advancedkk10,795.00
Depositdkk32,385.00

More facilities

Balcony: Yes
Elevator: Yes
Pets not allowed
CONTACT LANDLORD NOW
This website uses cookies to ensure you get the best experience on our website.Read more
Ok