×

Du skal logge ind for at kunne fortsætte.

Nyopført rækkehus med terrasse i Vestbjerg

Rent for 9,795 dkk/mth
Rooms4 rooms
Rental periodUnlimited
Area94m2
TypeHouse
CONTACT LANDLORD NOW

Amenities

Rooms4 rooms
Rental periodUnlimited
Area94m2
TypeHouse
Occupation dateMar 01
DateYesterday
StreetRonjasvej

Nyopført rækkehus med terrasse i Vestbjerg

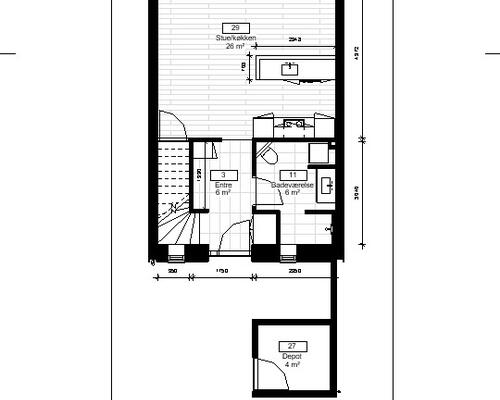
Boligen byder på en entré med adgang til det åbne opholdsrum, hvor stue og køkken ligger samlet i ét og får et dejligt lys fra de store vinduespartier. Herfra er der direkte udgang til en terrasse. Køkkenet er indrettet med hvide elementer og alle nødvendige hårde hvidevarer. . Badeværelset er rummeligt og har bruseniche, væghængt toilet og god skabsplads.. Derudover rummer boligen 3 gode værelser.. Her bor du i et nyere boligområde med rolige stisystemer. Lige ved siden af boligen finder du Netto, så dagligvareindkøb bliver hurtigt klaret. Derudover er der kort afstand til Vestbjerg Skole, sportshal, bibliotek og grønne områder, som indbyder til gåture og udendørsaktiviteter.. Vestbjerg har gode busforbindelser, og du når Aalborg på cirka 15 minutter i bil, hvilket gør området oplagt for både pendlere og studerende, der ønsker lidt mere ro i hverdagen.. Udenfor får du egen parkeringsplads og et praktisk skur.. *Der er opsat ladestandere. *Bedre billeder på vej!

Prices

Rent per monthdkk/mth9,795.00
Fixed expensesdkk/mth0.00
Rent in advancedkk9,795.00
Depositdkk29,385.00

More facilities

Balcony: Yes
Pets allowed
CONTACT LANDLORD NOW
This website uses cookies to ensure you get the best experience on our website.Read more
Ok