Skøn Stuelejlighed m. terrasse i Odense C.

Rent for 9,700 dkk/mth
Rooms3 rooms
Rental periodUnlimited
Area90m2
TypeApartment

Remarks

  • The property is offered through an association - there may be a small fee to register
  • This provider might have a queue system for some of their properties
CONTACT LANDLORD NOW

Amenities

Rooms3 rooms
Rental periodUnlimited
Area90m2
TypeApartment
Occupation dateMar 15
DateToday
StreetFalen

Skøn Stuelejlighed m. terrasse i Odense C.

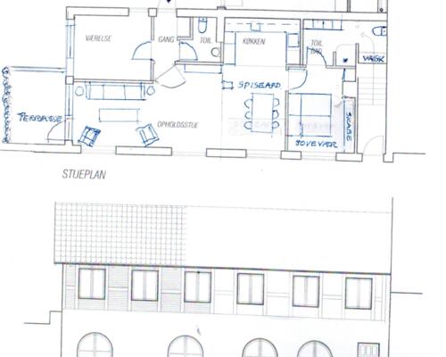
Rummelig, lys og charmerende 3-vær. stuelejlighed på 90 m2 med hyggelig stue med udgang til eftermiddags og aften terrasse.. Åbent køkken alrum, entre med gæstetoilet og værelse.. soveværelse med indbyggede skabsvæg og adgang til pænt badeværelse og toilet med vaskefaciliteter.. Indgang fra lukket gård, hvortil der er portadgang og mulighed for at leje en p-plads.. Der er porttelefon og adgang til eget, stort kælderrum og cykelkælder.. I beskyttede og rolige omgivelser- i gåafstand fra Vestergade og indkøbsfaciliteter såsom Føtex og lavpris 365 og Munkemose..

Prices

Rent per monthdkk/mth9,700.00
Fixed expensesdkk/mth700.00
Rent in advancedkk0.00
Depositdkk19,400.00

More facilities

Balcony: Yes
Pets not allowed
CONTACT LANDLORD NOW
This website uses cookies to ensure you get the best experience on our website.Read more
Ok