Studio med albuerum og byens puls tæt på

Rent for 11,700 dkk/mth
Rooms1 room
Rental period-
Area48m2
TypeApartment
CONTACT LANDLORD NOW

Amenities

Rooms1 room
Rental period-
Area48m2
TypeApartment
Occupation date-
DateToday

Studio med albuerum og byens puls tæt på

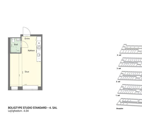
Klassisk studiolejlighed med funktionel planløsning og kompakt indretning. Opholdsrummet rummer både seng, spiseplads og sofa. Store vinduer giver et flot lysindfald. Køkkenet ligger i forlængelse af entréen og indeholder alt i hårde hvidevarer. Badeværelse med separat brus. Ejendommen - Mere end bare din egen bolig: Siljangade rummer 138 lyse studios med eget køkken og bad – og adgang til alt det ekstra, der gør en forskel i hverdagen. Her er fælles tagterrasse med udsigt over byen, loungeområder, mødelokaler, co-working, fitnessrum og en grøn gård. Du kan også benytte vaskeri og parkering, og nyde måltider eller en kaffe i husets eget spisested, The Kitchen. Alt er samlet under ét tag – lige til at tage i brug. Området – et levende hjørne af København: Siljangade ligger lige der, hvor byen åbner sig. Med Kløvermarkens grønne flader foran og Amagerbros summen bag dig, har du både ro og puls inden for rækkevidde. Her er kort afstand til metro, Christianshavn og Amager Strand – og indkøb finder du lige rundt om hjørnet. Det gør det let at få hverdagen til at glide, uanset om du bor, arbejder eller gør begge dele her. Bemærk venligst, at billederne kan være fra en anden bolig, hvorfor indretning, beliggenhed og udsigt kan variere. Materialevalg og kvalitet er den samme for alle boliger i ejendommen. Se plantegningen for indretningen af denne bolig

Prices

Rent per monthdkk/mth11,700.00
Fixed expensesdkk/mth0.00
Rent in advancedkk0.00
Depositdkk0.00

More facilities

Elevator: Yes
Sharing friendly: Yes
Pets: ask landlord
CONTACT LANDLORD NOW
This website uses cookies to ensure you get the best experience on our website.Read more
Ok