Godt indrettet 2-værelses i skønne Odense! KUN 2 MÅNEDERS DEPOSITUM

Lej for 6.900 kr/md
Værelser2 værelser
Udlejnings periode-
Areal48m2
TypeLejlighed
KONTAKT UDLEJER NU

Faciliteter

Værelser2 værelser
Udlejnings periode-
Areal48m2
TypeLejlighed
Indflytnings dato-
DatoI dag

Godt indrettet 2-værelses i skønne Odense! KUN 2 MÅNEDERS DEPOSITUM

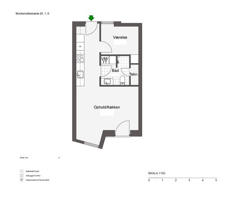
Om boligen:Velkommen til denne moderne 2 værelses lejlighed, der byder på stilfuld komfort og praktiske genialiteter. Her er virkelig tænkt over fordeling af kvadratmeterne med en smart planløsning, der giver en optimal indretning. Det moderne køkken er et sandt knudepunkt for denne lejlighed med en flydende overgang til stuen. Udstyret med topmoderne apparater og elegant design er det et ideelt sted til madlavning og underholdning. De glatte overflader og smarte opbevaringsløsninger giver både funktionalitet og æstetik mens det åbne layout skaber en rummelig og inviterende atmosfære. Den ekstra hyggekrog i stuen giver mulighed for at give et personligt touch i indretningen. Overfor køkkenet ligger lejlighedens værelse.Badeværelset er med til at skabe en oplevelse af ro og afslapning med en praktisk vaskesøjle, der gør det at ordne vasketøjet til en leg. Det stilfulde design og de moderne armaturer skaber en fornemmelse af luksus mens det funktionelle layout sikrer praktisk brug i hverdagen. Den franske altan, er med til at åbne op for lejligheden, og giver mulighed for at lade den friske luft strømme ind.Bemærk venligst, at billederne kan være fra en anden bolig, hvorfor indretning, beliggenhed og udsigt kan variere. Se plantegningen for indretningen af denne bolig.Om ejendommen:Munkemøllestræde 20 i Odense C præsenterer en unik boligmulighed til dig, der ønsker et hjem omringet af byliv. Ejendommen byder på 26 attraktive lejemål. Hertil kommer en stor fælles tagterrasse, hvor du kan mødes med naboer eller blot nyde en rolig stund for dig selv.Om området:Bo i historiske og kulturelle omgivelser, næsten lige ved siden af H.C. Andersens barndomshjem og tæt på det idylliske grønne område, Munke Mose. Livet her er omringet af et udvalg af hyggelige restauranter og caféer, der sikrer, at du aldrig er langt fra byens kulinariske oplevelser.

Priser

Leje per måned6.900,00 kr/md
Forbrug0,00 kr/md
Forudbetalt leje0,00 kr
Depositum0,00 kr

Flere faciliteter

Altan: Ja
Elevator: Ja
Delevenlig: Ja
Husdyr: spørg udlejer
KONTAKT UDLEJER NU
Dette websted anvender cookies til trafikanalyse og målrettede annoncer m.m.Mere info
Ok