4 værelses hus i Give

Hyra för 9795 dkk/mån
Rum4 rum
Hyresperiod-
Boyta95m2
TypHus
KONTAKTA HYRESVÄRD NU

Faciliteter

Rum4 rum
Hyresperiod-
Boyta95m2
TypHus
InflyttningsdatumSå snart som möjligt
DatumIdag

4 værelses hus i Give

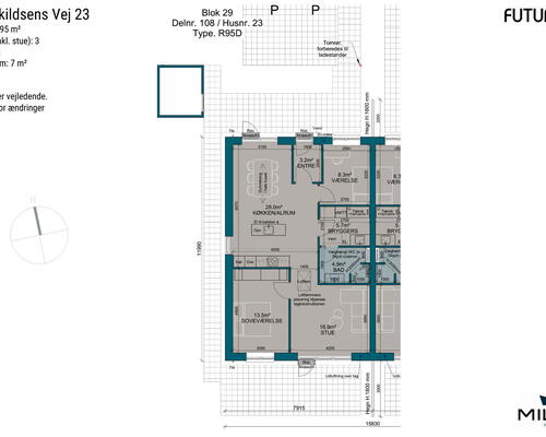
På Ane Sørensens Vej finder du dette moderne 4-værelses dobbelthus på 95 m² – opført i 2023 og skabt til et liv, hvor funktionalitet og stemning går hånd i hånd. Her er rammerne nye, lyse og indbydende, og indretningen er gennemtænkt ned til mindste detalje.Hverdagen samles i alrummetBoligens naturlige samlingspunkt er det store køkken/alrum og stue i ét. Her strømmer lyset ind gennem de brede vinduespartier, og rummet inviterer både til rolige morgener, fælles madlavning og lange aftener omkring spisebordet. Køkkenet fremstår moderne og stilrent – naturligvis med alle hårde hvidevarer – og med god plads til både hverdag og gæster.Plads til både privatliv og fællesskabPlanløsningen byder på tre gode værelser, der nemt kan tilpasses familiens behov – hvad enten det er soveværelse, børneværelse, kontor eller gæsteværelse. Her er der tænkt i fleksibilitet, så boligen kan følge med livet, uanset hvilken fase du befinder dig i.Praktiske løsninger – uden at gå på kompromisBadeværelset er moderne og funktionelt, og boligens bryggers/entré binder hjemmet sammen med plads til hverdagens praktiske gøremål. Alt fremstår nyt, velholdt og klar til indflytning – her kan du bare flytte ind og begynde at bo.Udeliv og nem parkeringTil boligen hører to private parkeringspladser med mulighed for etablering af ladestander. Udenfor er der gode muligheder for at skabe små uderum, hvor kaffen kan nydes, og hverdagen kan få lidt ekstra luft.Praktisk info4-værelses dobbelthus95 m²Opført i 2023Alle hårde hvidevarer medfølgerGulvvarme og ventilation i hele huset2 private parkeringspladser med mulighed for ladestanderHusdyr tilladt mod godkendelse

Priser

Hyra per månad9795,00 dkk/mån
Fasta kostnader0,00 dkk/mån
Förskottshyra0,00 dkk
Deposition29400,00 dkk

Flere faciliteter

Altan: Ja
Delevenlig: Ja
Husdyr tilladt
KONTAKTA HYRESVÄRD NU
Denna webbplats använder cookies för att säkerställa att du får den bästa upplevelsen på vår webbplats.Läs mer
Ok