4 værelses hus i Greve

Hyra för 15300 dkk/mån
Rum4 rum
Hyresperiod-
Boyta106m2
TypHus
KONTAKTA HYRESVÄRD NU

Faciliteter

Rum4 rum
Hyresperiod-
Boyta106m2
TypHus
Inflyttningsdatum14 jul
DatumIdag
GataViften

4 værelses hus i Greve

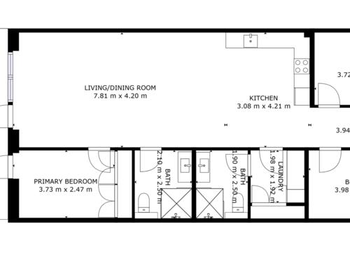
Familievenligt rækkehus med have mod sydvestVeldisponeret enderækkehus i 2 plan med parkering – og elladestandere – lige uden for døren. Fra indgangsterrassen foran huset træder du ind i vindfanget, som er direkte forbundet med boligens hjerte, køkken-alrummet. Stueetagen rummer desuden toilet og en hyggelig stue. Fra stuen er der udgang til haven, som med sin placering mod sydvest giver dig mange soltimer r, samtidig med at du er tæt på kvarterets store grønne fællesområde. På førstesalen finder du badeværelset, et stort soveværelse og to gode værelser med ekstra højt til loftet.Bemærk venligst, at de viste billeder er ikke fra/af den pågældende bolig, hvorfor udsigt, rum mv. kan variere. De viste billeder er derfor kun et eksempel, og den endelige størrelse og indretning kan variere (se plantegningen).

Priser

Hyra per månad15300,00 dkk/mån
Fasta kostnader0,00 dkk/mån
Förskottshyra15300,00 dkk
Deposition45900,00 dkk

Flere faciliteter

Delevenlig: Ja
Husdyr tilladt
KONTAKTA HYRESVÄRD NU
Denna webbplats använder cookies för att säkerställa att du får den bästa upplevelsen på vår webbplats.Läs mer
Ok