×

Du skal logge ind for at kunne fortsætte.

Rækkehus i 2-plan med åbent køkken-alrum

Hyra för 8900 dkk/mån
Rum3 rum
HyresperiodObegränsat
Boyta87m2
TypHus
KONTAKTA HYRESVÄRD NU

Faciliteter

Rum3 rum
HyresperiodObegränsat
Boyta87m2
TypHus
Inflyttningsdatum 1 apr
DatumIdag

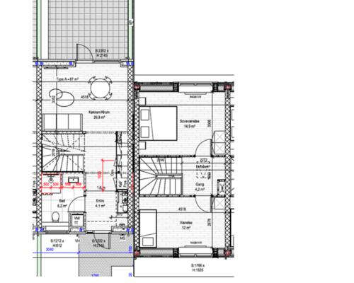
Rækkehus i 2-plan med åbent køkken-alrum

Når du træder ind i rækkehuset, mødes du af en entré. Herfra er der adgang videre ind i boligens opholdsrum.. Stueplan er indrettet med køkken og stue i åben forbindelse. Køkkenet ligger praktisk placeret med god skabsplads og nødvendige hårde hvidevarer, og i forlængelse heraf er der plads til spisebord. Stuen har en god størrelse og kan indrettes med både sofaområde og spiseplads, alt efter behov. Fra opholdsrummet er der udgang til en terrasse.. På stueplan finder du desuden et badeværelse.. Via trappen kommer du op på førstesalen. Her finder du boligens værelser, som alle har en god størrelse og kan anvendes som soveværelser, børneværelser, kontor eller gæsteværelse. . Planløsningen giver en god opdeling mellem opholdsrum og værelser, hvilket gør boligen velegnet til både par og familier, der ønsker en overskuelig og funktionel indretning.. Rækkehuset ligger i Vestbjerg, et område kendt for trygge boligkvarterer. Du er tæt på indkøb, skole, daginstitutioner og sportsaktiviteter. Vestbjerg har gode busforbindelser og nem adgang til motorvejen, så du hurtigt kan komme til både Aalborg, Nørresundby og resten af Nordjylland. Nærområdet byder desuden på grønne stier og gode gå- og løberuter.. *Forbrug betales direkte til forsyningen. *Hvidevarer i køkkenet bliver indsat inden indflytning. *Der bliver opsat Clever ladestandere. *Billederne er fra et 4-værelses rækkehus, opført i samme kvalitet og med samme materialevalg. Plantegningen er retvisende.

Priser

Hyra per månad8900,00 dkk/mån
Fasta kostnader0,00 dkk/mån
Förskottshyra8900,00 dkk
Deposition26700,00 dkk

Flere faciliteter

Altan: Ja
Husdyr tilladt
KONTAKTA HYRESVÄRD NU
Denna webbplats använder cookies för att säkerställa att du får den bästa upplevelsen på vår webbplats.Läs mer
Ok